






















Descoperiți o oază de liniște și rafinament în inima naturii, la doar câțiva pași de facilitățile esențiale. Situată în prestigiosul ansamblu rezidențial Snagov Villas, această vilă deosebită îmbină armonios confortul modern cu farmecul peisajului natural din vecinătatea pădurii Snagov.
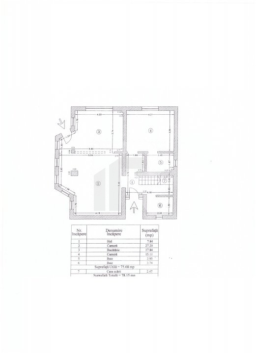
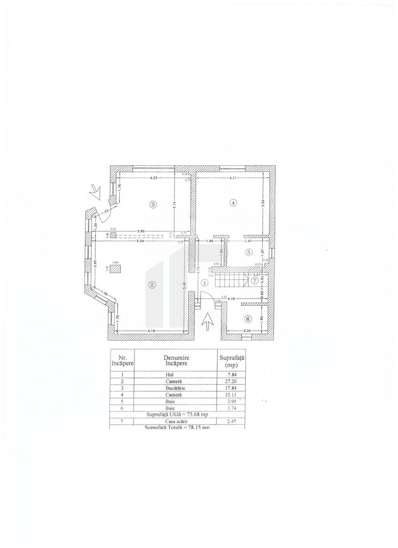
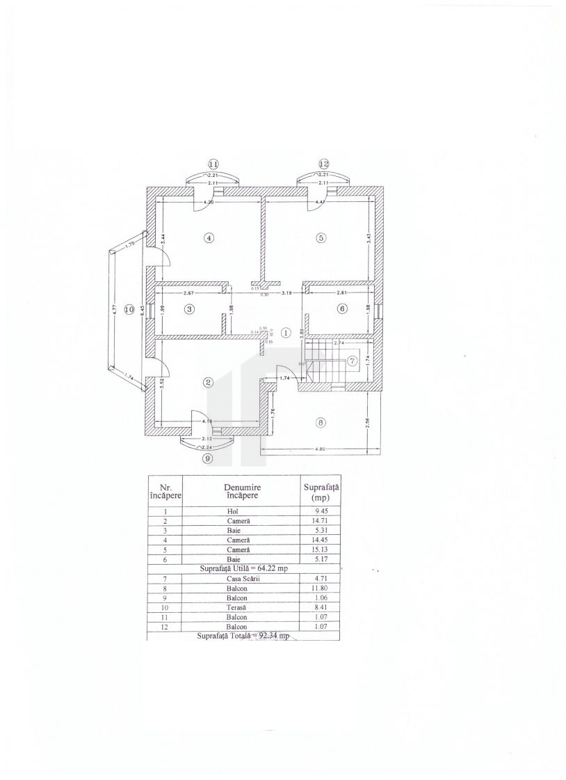
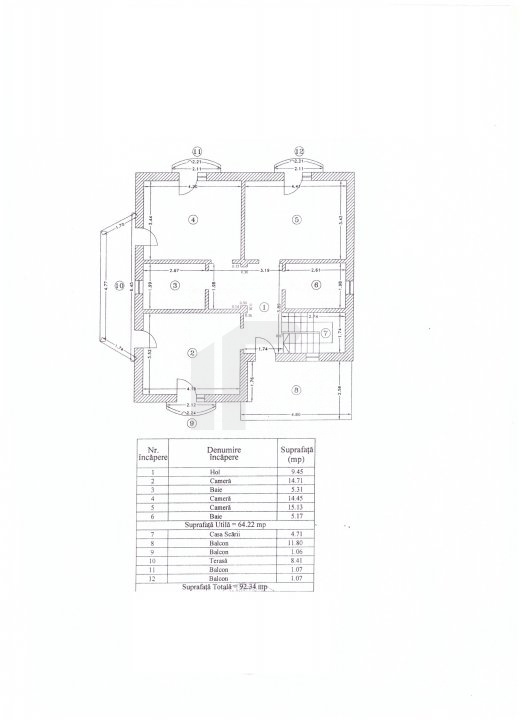
Cu o suprafață generoasă de 170 mp, această reședință P+1 oferă un spațiu intim și elegant, perfect pentru familii. Cele 5 camere luminoase, dintre care 4 dormitoare spațioase și 3 băi moderne, sunt completate de 4 balcoane ce deschid priveliști asupra grădinii pline de verdeață.
Construită cu atenție la detalii, vila beneficiază de o structură solidă din beton și izolație exterioară, garantând o durabilitate excepțională și un confort termic constant datorită centralei proprii. Finisajele moderne și personalizabile îți oferă libertatea de a transforma fiecare colț într-un spațiu care reflectă stilul tău.
Curtea generoasă și aerisită este o invitație la relaxare în aer liber, iar grădina deschisă oferă intimitatea necesară pentru momente de liniște și reconectare cu natura. Accesul facil la școală, grădiniță și trattorie adaugă un plus de confort stilului de viață cotidian.
Aceasta nu este doar o casă, ci un refugiu pentru cei care își doresc să trăiască în armonie cu natura, fără a renunța la luxul și comoditățile moderne. Ideală pentru cei ce prețuiesc liniștea și un stil de viață eco-friendly, această proprietate promite să fie locul unde visele devin realitate.